
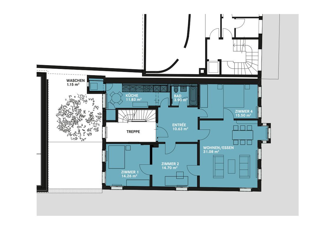
4.5 Zimmer-Wohnung
Wohnung Nr. | 0201 |
Stockwerk | 2. Obergeschoss |
Gesamtfläche | 103.05 m² |
Estrich | 10.03 m² |
- Dachterrasse mit herrlicher Seesicht zur Mitbenützung
- eigenes Wasch-Trockner-Kombigerät
- schöne, überhohe Räume bis 2.77 m
Wohnung Nr. | 0201 |
Stockwerk | 2. Obergeschoss |
Gesamtfläche | 103.05 m² |
Estrich | 10.03 m² |