
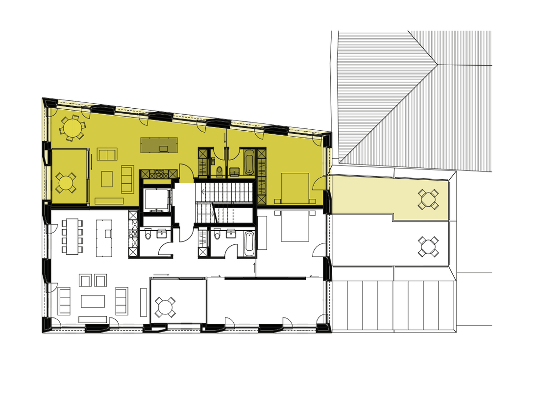
2.5 Zimmer-Wohnung
Wohnung Nr. | 0101 |
Stockwerk | 1. Obergeschoss 2.5 ZWG |
Gesamtfläche | 70.39 m² |
Loggia | 8.34 m² |
Terrasse | 19.36 m² |
Keller | 2.82 m² |
- Terrasse von 19.36 m2 zur alleinigen Benutzung
- Loggia mit Holzrost und Windschutzverglasung
- Einbauschrank im Schlafzimmer
- Nasszelle und sep. WC