
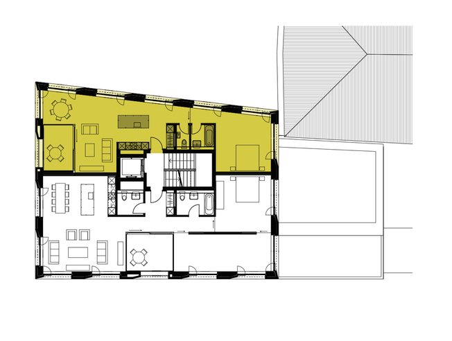
2.5 Zimmer-Wohnung
Wohnung Nr. | 0401 |
Stockwerk | 4. Obergeschoss 2.5 ZWG |
Gesamtfläche | 70.39 m² |
Loggia | 8.34 m² |
Keller | 2.97 m² |
- Loggia mit Holzrost und Windschutzverglasung
- eingebauter Garderobenschrank
- Nasszelle und sep. WC
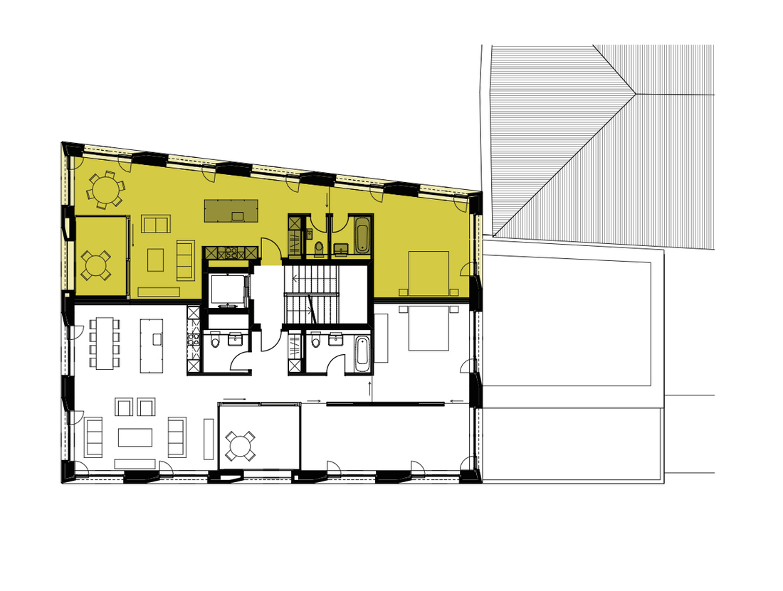
Wohnung Nr. | 0401 |
Stockwerk | 4. Obergeschoss 2.5 ZWG |
Gesamtfläche | 70.39 m² |
Loggia | 8.34 m² |
Keller | 2.97 m² |