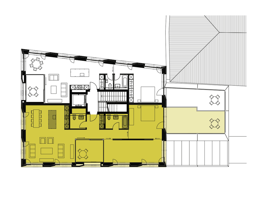
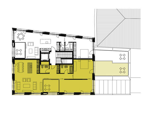
Zentral Wohnen in Rorschach

3.5 Zimmer-Wohnung

Wohnung Nr. 0102
Stockwerk 1. Obergeschoss 3.5 ZWG
Gesamtfläche 108.73 m²
Loggia 10.75 m²
Terrasse 24.62 m²
Keller 2.87 m²
  • Terrasse von 24.62 m2 zur alleinigen Benutzung
  • Loggia mit Holzrost und Windschutzverglasung
  • eingebauter Garderobenschrank